Treść strony BOISKO SZKOLNE W KOŹLU, BOISKO WIELOFUNKCYJNE W NIESUŁKOWIE-KOLONII

PRZEBUDOWA BOISKA SZKOLNEGO PRZY SZKOLE PODSTAWOWEJ W KOŹLU

Gmina Stryków w 2025 r. zrealizowała inwestycję pn. „Przebudowa boiska szkolnego przy Szkole Podstawowej w Koźlu”, której celem była poprawa infrastruktury sportowej oraz stworzenie bezpiecznych i nowoczesnych warunków do prowadzenia zajęć wychowania fizycznego oraz aktywności sportowej mieszkańców.

W ramach inwestycji przebudowano boisko do piłki nożnej, wykonując nawierzchnię z trawy syntetycznej, oraz wybudowano boisko do koszykówki z wyposażeniem sportowym. Powstały także bieżnia okrężna i bieżnia do skoku w dal, rozszerzające możliwości prowadzenia zajęć lekkoatletycznych.

W ramach inwestycji zagospodarowano teren wokół obiektów sportowych: wymieniono ogrodzenie placu zabaw, zdemontowano część urządzeń, zamontowano ławki, utwardzono teren oraz rozbudowano oświetlenie.

Całkowity koszt realizacji inwestycji wyniósł 1 599 000 zł.

  • Przebudowa boiska w Koźlu - inwestycja 2025 rok
  • Przebudowa boiska w Koźlu - inwestycja 2025 rok
  • Przebudowa boiska w Koźlu - inwestycja 2025 rok
  • Przebudowa boiska w Koźlu - inwestycja 2025 rok
  • Przebudowa boiska w Koźlu - inwestycja 2025 rok
  • Przebudowa boiska przy SP w Koźlu 2025
  • Przebudowa boiska przy SP w Koźlu 2025
  • Przebudowa boiska przy SP w Koźlu 2025
  • Projekt techniczny przebudowy boiska w Koźlu, rzut boiska i bieżni
  • Przekazanie terenu budowy inwestycji w Koźlu



BUDOWA BOISKA WIELOFUNKCYJNEGO W NIESUŁKOWIE-KOLONII

Gmina Stryków w 2025 r. zrealizowała inwestycję pn. „Budowa boiska wielofunkcyjnego w Niesułkowie-Kolonii”, której celem była poprawa infrastruktury sportowej oraz stworzenie bezpiecznych i nowoczesnych warunków do aktywności sportowej mieszkańców.

W ramach inwestycji wykonano boisko wielofunkcyjne o wymiarach 17,07 m x 34,77 m (powierzchnia 593,52 m²) przeznaczone do gry w piłkę nożną, siatkówkę, koszykówkę i tenis. Nawierzchnia boiska została wykonana z syntetycznej, poliuretanowo-gumowej, dwuwarstwowej, bezspoinowej nawierzchni, zaprojektowanej w technologii zapewniającej bezpieczeństwo użytkowników i spełniającej obowiązujące normy. Boisko zostało wyposażone w bramki, słupki i siatki, kosze do gry oraz piłkochwyty.

Całkowity koszt realizacji inwestycji wyniósł 486 400 zł.

  • Boisko w Niesułkowie-Kolonii, inwestycja po realizacji
  • Boisko w Niesułkwie-Kolonii, inwestycja po realizacji
  • Boisko wielofunkcyjne w Niesułkowie Kolonii - inwestycja w trakcie
  • Budowa boiska w Niesułkowie-Kolonii 2025
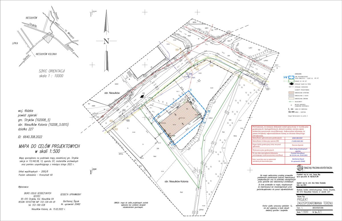
  • Projekt techniczny boiska wielofunkcyjnego w Niesułkowie-Kolonii, mapa do celów projektowych

Kontakt stopka

Dane adresowe

  • Stryków Herb

URZĄD MIEJSKI W STRYKOWIE

ul. Tadeusza Kościuszki 27
95-010 Stryków

 

 

 

 

      tel. +48 (42) 719 80 02
      tel. +48 (42) 719-84-03
      tel. +48 (42) 719-94-95
      fax  +48 (42) 719 81 93
      e-mail: strykow@strykow.pl

      Adres skrytki Epuap: /1020083/SkrytkaESP

      Adres e-Doręczeń: AE:PL-94389-97256-UUTVR-18

      Godziny urzędowania:
     

                                                                                       pn, śr, czw: 08:00 - 16:00
                                                                                       wt: 08:00 - 17:00
                                                                                       pt: 08:00 - 15:00

                                                                                       Godziny pracy kasy Urzędu:
                                                                                       pn, wt, śr, czw: 08:00 - 15:00,
                                                                                       pt: 08:00 - 14:00

 

 

Mapa Stryków

[obiekt mapy] Mapa Stryków