Treść strony INFRASTRUKTURA SPORTOWA
INWESTYCJE ZREALIZOWANE W 2025 r.
PRZEBUDOWA BOISKA SZKOLNEGO PRZY SZKOLE PODSTAWOWEJ W KOŹLU
Inwestycja zakończona. Gmina Stryków wyłoniła w postępowaniu przetargowym wykonawcę inwestycji. Umowa została podpisana 28 kwietnia 2025 r. Przekazanie terenu budowy nastąpiło 2 czerwca br. Termin realizacji wynosił 90 dni od dnia przekazania terenu budowy. Wykonawca nie realizował zadania zgodnie z warunkami umowy oraz w umownym terminie. Gmina Stryków odstąpiła od umowy z dniem 20 sierpnia br. Po wykonaniu inwentaryzacji robót przerwanych, rozpoczęto procedurę wyboru kolejnego wykonawcy. Na sesji nadzwyczajnej Rady Miejskiej w Strykowie, która odbyła się 13 października 2025 r, Radni przyjęli zmiany w budżecie gminy pozwalające na kontynuację i sprawne dokończenie tego zadania. Prace w Koźlu zostały wznowione. W ramach inwestycji zrealizowano: przebudowę istniejącego boiska do piłki nożnej na boisko o nawierzchni z trawy syntetycznej, budowę boiska do gry w koszykówkę wraz z wyposażeniem w urządzenia sportowe, budowę bieżni okrężnej i bieżni do skoku w dal, wymianę ogrodzenia placu zabaw i demontaż części urządzeń, montaż ławek, utwardzenie terenu, rozbudowę instalacji oświetlenia terenu. Całkowity koszt realizacji inwestycji wyniósł 1 599 000 zł.
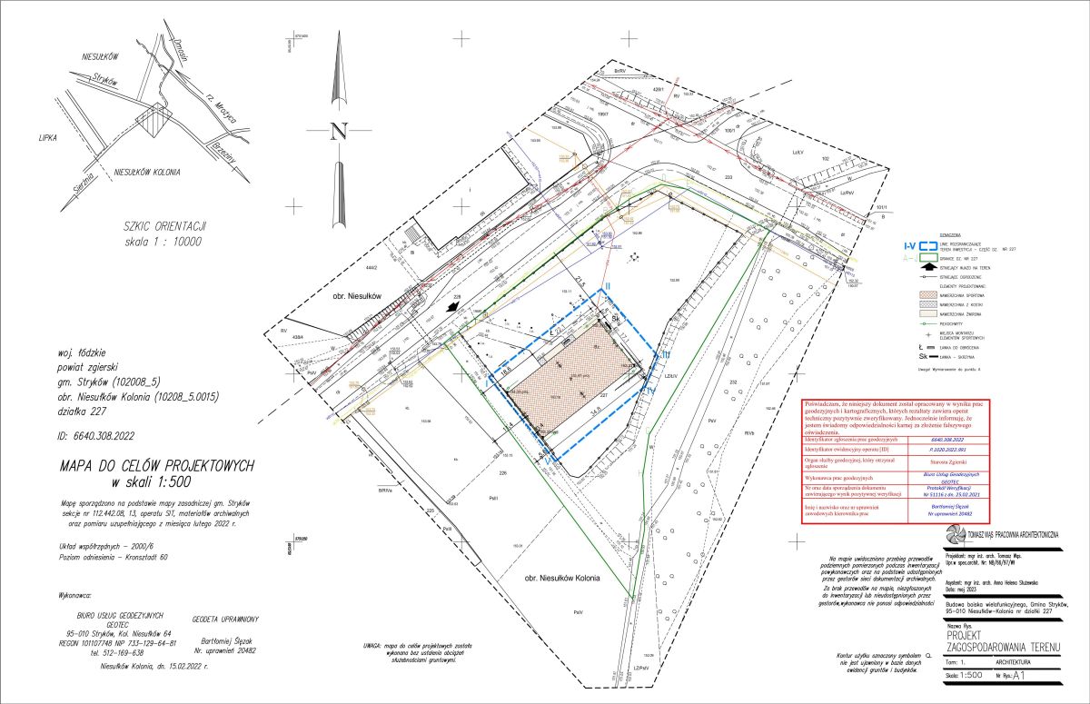
BUDOWA BOISKA WIELOFUNKCYJNEGO W NIESUŁKOWIE-KOLONII
Inwestycja zakończona. Umowa z wyłonionym w postępowaniu prztargowym wykonawcą, firma „RAD- BUD Wiesław Radziejowski”, ul. Kozienicka 88, 26-600 Radom została podpisana 15 kwietnia 2025 r. Wartość umowy wyniosła 486.400,00 zł. W ramach zadania wykonano boisko wielofunkcyjne o wymiarach 17,07m x 34,77m, o powierzchni 593,52 m2 przeznaczone do gry w piłkę nożną, siatkówkę, koszykówkę i tenis. Nawierzchnia boiska syntetyczna, poliuretanowo – gumowa, bezspoinowa, dwuwarstwowa, zaprojektowana w technologii zapewniającej bezpieczeństwo użytkowników, spełniająca wymagane normy. Boisko wyposażone zostało w bramki, słupki i siatki, kosze do gry oraz piłkochwyty.
INWESTYCJE Z LAT WCZEŚNIEJSZYCH
BUDOWA BOISK PRZY SP 1 W STRYKOWIE – „BALON”
W ramach zadania w 2019 roku zostały wybudowane 2 zadaszone boiska wielofunkcyjne, o łącznej powierzchni 1.195,75m2 - szerokości 34,44m i długości 34,72m.
ROZBUDOWA ZAPLECZA PRZY „BALONIE”
W 2021 roku zrealizowaliśmy inwestycję w związku z koniecznością zapewnienia należytych warunków funkcjonowania zaprojektowanych w 2018 r. i wybudowanych w 2019 r. boisk wielofunkcyjnych „Balon” przy SP 1. Niestety tych rozwiązań nie ujęto w dokumentacji technicznej wykonanej w poprzedniej kadencji. Dzięki dobudowanemu budynku:
MODERNIZACJA I REMONT ORLIKA
W 2022 roku zmodernizowaliśmy kompleks boisk Orlik. Zakres prac obejmował:
💠remont boiska do piłki nożnej,
💠remont boiska wielofunkcyjnego,
💠wymianę piłkochwytów boiska do piłki nożnej po stronie południowej,
💠wymianę pochylonego ogrodzenia i uzupełnienie siatki,
💠formowanie skarp i założenie trawnika,
💠rekultywację trawnika na obwodzie boisk,
💠naprawę nawierzchni z kostki brukowej,
💠wykonanie dodatkowych stopni terenowych i poręczy w narożniku boiska do koszykówki.
KONSERWACJA ORLIKA
W każdym sezonie realizujemy prace konserwacyjne obejmujące: konserwację boiska ze sztuczną nawierzchnią trawiastą, konserwację boiska wielofunkcyjnego, malowanie linii boisk na boisku wielofunkcyjnym, serwis koszy do koszykówki, wymianę siatek na piłkochwytach oraz serwis miejsc siedzących.
BUDOWA OŚWIETLENIA BOISKA PRZY UL. BRZEZIŃSKIEJ
W 2021 roku zrealizowaliśmy budowę 6 masztów z 12 oprawami oświetleniowymi LED o łącznej mocy 16,8 KW, zasilanymi wewnętrzną linią z nowo zaprojektowanej rozdzielnicy oświetleniowej. Ponadto na masztach oświetleniowych zamontowaliśmy dodatkowo 3 głośniki. Koszt inwestycji wyniósł 267.648,74 zł.
ROZBUDOWA ZAPLECZA SPORTOWEGO PRZY UL. BRZEZIŃSKIEJ
W 2022 roku powiększyliśmy dotychczasowe zaplecze boiska przy ul. Brzezińskiej o:
💠pomieszczenia siłowni z węzłem sanitarnym oraz szatnią,
💠pomieszczenie biurowe,
💠magazyn na sprzęt,
💠przed budynkiem wykonany został wjazd i dojście z kostki betonowej.
WYPOSAŻENIE SIŁOWNI PRZY UL. BRZEZIŃSKIEJ
W połowie 2023 r. doposażyliśmy pomieszczenie siłowni w dobudowanym w 2022 r. zapleczu przy ul. Brzezińskiej, w wysokiej klasy profesjonalne urządzenia sportowe:
💠wielofunkcyjny atlas do jednoczesnych ćwiczeń dla 8-10 osób,
💠ergometr wioślarski, czyli wioślarz wodny,
💠dwa rowery treningowe,
💠bieżnia elektryczna.
PLANY BUDOWY BOISKA PRZY SP W NIESUŁKOWIE
Po analizie potrzeb, lokalizacji, dodatkowych konsultacjach z Dyrektor szkoły oraz zestawieniu kosztorysowym inwestycji, dot. budowy wnioskowanego przez Sołectwo Niesułków-Kolonia boiska wielofunkcyjnego na działce sołeckiej, Burmistrz Strykowa Witold Kosmowski podjął decyzję o przeniesieniu planowanej inwestycji na sąsiadujący teren SP w Niesułkowie:
💠po pierwsze - przechodzenie dzieci i młodzieży przez drogę byłoby niebezpieczne i niefunkcjonalne w codziennym użytkowaniu,
💠po drugie - szacunkowy koszt wynikający z kosztorysów i dokumentacji technicznej z 2023 roku dla boiska na działce sołeckiej wyniósł 799 458,20 zł, co stanowi znaczący wydatek budżetowy, więc infrastruktura powinna być w pełni wykorzystywana, dlatego najbardziej opcjonalna jest lokalizacja na terenie szkoły zlokalizowanej w bezpośrednim sąsiedztwie działki sołeckiej. Do południa, w godzinach lekcyjnych korzystać będzie społeczność szkolna, a po godzinach zainteresowani mieszkańcy.
💠po trzecie - teren szkoły daje szersze możliwości projektowe, uwzględniające dodatkowe elementy infrastruktury sportowej, takiej jak np. budowa skoczni do skoku w dal i trójskoku z fragmentem bieżni, umożliwiające efektywniejszą realizację podstawy programowej w szkole.
NAPRAWA SALI GIMNASTYCZNEJ W SP W KOŹLU
W 2023 roku w Szkole Podstawowej w Koźlu wykonano prace remontowe w zakresie usunięcia nieszczelności dachu sali gimnastycznej. Remont był konieczny ze względu na pojawiające się w kilku miejscach po intensywnych deszczach przecieki wzdłuż belki środkowej dachu, z których jeden - ze względu na swą lokalizację w pobliżu silnika napędu kotary przedzielającej salę - był szczególnie niebezpieczny. Koszt remontu wyniósł ok. 6.000,00 zł. Problem nieszczelności dachu istniał od początku użytkowania sali gimnastycznej, tj. od 2017 r. (w poprzedniej kadencji).
ROZWIĄZANIE PROBLEMU NA SALI GIMNASTYCZNEJ W SP W NIESUŁKOWIE
W 2019 roku w Szkole Podstawowej w Niesułkowie Burmistrz Strykowa Witold Kosmowski zlecił rozbudowę instalacji c.o. polegającą na montażu 12 sztuk grzejników w sali gimnastycznej i włączeniu ich do istniejącej instalacji c.o. Potrzeba realizacji inwestycji wynikała z wieloletniego problemu niskiej temperatury (12-18 °C) występującej w sali gimnastycznej w sezonie zimowym oraz w dni pochmurne i wietrzne w ciągu roku, co wykluczało prowadzenie lekcji wf. Zainstalowane nagrzewnice wodne spełniały swoją funkcję tylko na początku swojej pracy. Mając na względzie groźbę wyłącznie z użytkowania sali gimnastycznej wybudowanej w 2011 r., której ogrzewanie nie spełnia swojej roli, Burmistrz przedstawił Radzie Miejskiej jeszcze w grudniu 2018 r. konieczność jak najszybszego zabezpieczenia środków na ten cel w budżecie. Koszt zadania łącznie z projektem wyniósł 52.387 zł.
















